Zobacz na mapie

Willa w Rojales

Numer oferty: 170919
  • od 109 m2
  • 1
  • 3
  • 3
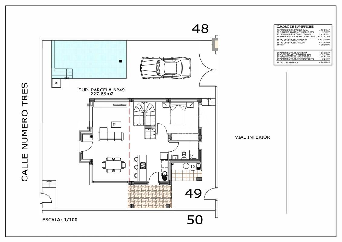
  • 227 m2
Od 579000
*Cena nie zawiera podatku VAT
Termin oddania:
Nowa budowa
Pobierz PDF
Atuty
Widok na morze
Przy polach golfowych
Basen prywatny
Basen ogólnodostępny
Balkon/taras
Parking
Ogród
Solarium
Informacje o nieruchomości
  • Typ: Willa
  • Powierzchnia: od 109 m2
  • Ilość łazienek: 3
  • Miasto: Rojales
  • Powierzchnia działki: od 227 m2
  • Ilość sypialni: 3
Opis nieruchomości

Odkryj tę wyjątkową nową willę, stworzoną z myślą o osobach poszukujących wysokiej jakości życia, komfortu oraz znakomitej lokalizacji. Dzięki południowej orientacji, dom jest pełen naturalnego światła przez cały dzień. Jego nowoczesny i funkcjonalny design doskonale nadaje się do korzystania z klimatu śródziemnomorskiego.

Nieruchomość oferuje 3 przestronne sypialnie i 3 pełne łazienki, utrzymane w eleganckim i współczesnym stylu. Na parterze znajduje się przytulna 12-metrowa pergola, połączona z prywatnym ogrodem, idealnym do relaksu lub spędzania czasu na świeżym powietrzu. Na dachu, 45-metrowy solarium zapewnia wyjątkową przestrzeń do opalania lub podziwiania pięknych widoków.

Zewnętrzna część została zaprojektowana z myślą o komforcie: prywatny basen o wymiarach 6,5 x 3,3 metra, wyłożony stylowymi płytkami, wyposażony w kolorowe oświetlenie, zintegrowane schody, wodospad o wysokości 1,20 m oraz ławkę zanurzoną pod wodospadem, idealne miejsce na wyjątkowe chwile relaksu. Znajduje się tu również miejsce parkingowe oraz wysokiej jakości wykończenia w każdym zakątku.

Usytuowana pomiędzy Ciudad Quesada a Malaga, rezydencja znajduje się na spokojnym obszarze otoczonym naturą, w pobliżu Parku Naturalnego Las Lagunas de La Mata i Torrevieja. Jest również zlokalizowana kilka minut od plaż w Guardamar oraz renomowanego pola golfowego.

Jest to doskonała okazja, zarówno jako stałe miejsce zamieszkania, dom wakacyjny, jak i inwestycja nieruchomościowa w jednym z najbardziej pożądanych regionów Costa Blanca.

Co otrzymamy w cenie
  • Miejsce parkingowe
  • Prywatny basen
  • Basen ogólnodostępny
  • Solarium
  • Ogród
  • Łazienka umeblowana
Lokalizacja

    Wyślij zapytanie